Nội dung chính
Hướng dẫn cách lắp đặt cửa cuốn:
Hiện nay, trên thị trường có rất nhiều đội thợ lắp đặt cửa cuốn chuyên nghiệp và tận tình. Tuy nhiên cũng không ít thợ chuyên môn lắp đặt không cao và gây ảnh hưởng đến cả chất lượng của sản phẩm. Các cụ đã có câu phải “yêu thầy, kính thợ nhưng không lơ là giám sát”. Để phục vụ tốt cho việc giám sát này, các bạn hãy tham khảo quy trình lắp đặt cửa khe thoáng đầy đủ, chi tiết. Để bộ cửa của gia đình luôn vững chắc và bền lâu với thời gian.
1. Khảo sát công trình:
Đây là khâu đầu tiên, chuẩn bị mặt bằng lắp cửa. Người thợ sẽ phải kiểm tra, khảo sát chính xác hiện trạng thực tế của công trình để tư vấn cho khách hàng.
- Xác định chính xác vị trí lắp ray, mặt bích.
- Chọn chủng loại, kích thước ray, mặt bích phù hợp. Tránh các sự cố ray quá dài, phải cắt bớt đi gây lãng phí. Hoặc ray quá ngắn không thể dùng được.
- Xác định chính xác vị trí lô cuốn: Lô trong hay lô ngoài.
- Xác định vị trí motor: bên trái hay bên phải. Thông thường, vị trí động cơ sẽ được nhìn theo vị trí lô trong hay lô ngoài. Việc xác định này còn giúp cho việc lên phương án lắp ổ điện, nút bấm âm tường phù hợp và đảm bảo thẩm mỹ.
2. Đo đạc kích thước trước khi lắp đặt cửa cuốn.
Sau khi đã khảo sát công trình xong. Người thợ cần tiến hành đo đạc kích thước cẩn thận. Kích thước để tính cửa khe thoáng là:
Hpb * Wcl
Trong đó:
- Hpb: là chiều cao phủ bì tính từ cos nền lên đến đỉnh lô
- Wcl: là chiều rộng chuẩn lá, lá cắt đến đâu tính tiền đến đó.

3. Lắp ray
Lắp ray chính xác, đảm bảo chắc chắn sẽ giúp bộ cửa vận hành dễ dàng và an toàn. Để đảm bảo được điều đó cần lắp trên tường gạch đặc hoặc bê tông. Có 2 trường hợp lắp ray cho cửa cuốn khe thoáng như sau:
Trường hợp không lắp con lăn đầu ray:
Hray = Hpb – 200
Trong đó:
Hray: là chiều dài của ray
Hpb: là chiều cao phủ bì của bộ cửa.
Đơn vị tính là milimet (mm)

Quy cách lắp ray không có con lăn
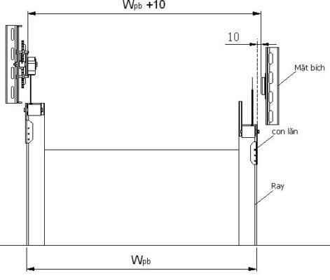
Trường hợp lắp ray có con lăn:
Chiều dài của ray phải ngang bằng với mặt nằm ngang dưới của mặt bích
Hray = Hpb – 200 (không kể phần chôn âm xuống nền nhà)
(hình ảnh) – Kích thước ray cửa khi lắp con lăn
Con lăn phải được gia cố chặt chẽ vào thân ray (tối thiểu phải bắt chặt bằng 3 ốc vít ở đáy ray và ở mặt cạnh ray).

Quy cách lắp ray cửa cuốn khe thoáng khi có con lăn đầu ray
Ray được bắt chặt vào tường bằng nhiều gá sắt bắt đối nhau. Tắc kê gắn vào tường xây rồi hàn với gá sắt đã gắn vào ray. Khi gắn gá sắt vào ray bằng rivet không được để đầu rivet lồi ra khỏi mặt trong của đáy ray.
Ray phải được lắp tuyệt đối thẳng đứng bằng cách dùng dây dọi để kiểm tra.
Ray phải được gia công chắc chắn, không bị rung khi cầm tay lắc mạnh. Khoảng cách các vị trí cần gia cố trên ray là 50 – 60 (cm), gá bát sắt đối nhau, dọc theo chiều dài của ray.
2 cạnh cùng 1 mặt của 2 thanh ray phải nằm trên cùng 1 mặt phẳng, tránh hiện tượng lòng U của 2 thanh ray không nhìn thẳng vào nhau.
4. Lắp mặt bích động cơ cho cửa.
– Có rất nhiều loại mặt bích động cơ cho cửa cuốn khe thoáng. Mỗi loại động cơ là 1 loại mặt bích khác nhau, kích thước khác nhau. Khi khảo sát, người thợ sẽ phải tư vấn lựa chọn mặt bích phù hợp với bộ cửa của gia chủ. Tốt nhất, khi lắp cửa gia chủ nên chọn những loại động cơ đồng bộ với cửa để hưởng nhiều ưu đãi và có chế độ bảo hành tốt nhất từ các hãng.
Đây là 1 số mẫu motor cho cửa cuốn, bạn có thể tham khảo để thêm lựa chọn cho bộ cửa của gia đình.

Kích thước khi lắp giá đỡ
Trước khi lắp giá đỡ, cần kiểm tra vị trí bắt giá đỡ đã có kết cấu xây dựng an toàn hay chưa để đảm bảo chắc chắn cho bộ cửa. Không lắp mặt bích vào kết cấu xây dựng bằng gạch lỗ, các kết cấu xây dựng không đảm bảo an toàn khác.
Giá đỡ khi lắp phải đảm bảo:
- Mặt trên giá đỡ phải cách trần nhà hoặc các kết cấu cố định nằm trên đỉnh lô cuốn một khoảng 50 (mm)
- Mặt dưới giá đỡ phải ngang bằng với thanh ray

- Mặt cắt các kích thước khi lắp giá đỡ
- Đảm bảo khoảng cách giữa 2 mặt bích. Trong trường hợp thông thường, trục lắp vào 2 mặt bích làm lô cuốn có chiều dài bằng chiều rộng phủ bì của bộ cửa.
Chú ý: Mặt giá đỡ có đục sẵn nhiều lỗ để gia cố phải nằm ra phía ngoài xa ray
5. Kiểm tra mọi thông số trước khi lắp đặt cửa cuốn
- Kiểm tra lại các thông số ghi trên phiếu KCS: kích thước phủ bì, vị trí đặt lô, các phụ kiện đi kèm. Khi khảo sát và chốt kích thước với thợ. Bạn nên ghi lại 1 bản cho mình để khi lắp mang ra so sánh, đối chiếu, tránh sai sót.
- Đo lại kích thước trên ray và giá đỡ.
- Dùng ống ti ô nước kiểm tra lại độ cao của 2 giá đỡ. Đây là bước người thợ sẽ làm nhằm mục đích kiểm tra lại cho chắc chắn.
- Kiểm tra không gian làm việc của cửa cuốn khe thoáng. Bốn mặt xung quanh lô cuốn phải đúng tiêu chuẩn kỹ thuật để cửa không bị va quệt làm trầy sơn.
- So sánh, kiểm tra lại một lần nữa các kích thước đo được với các thông số ghi trên phiếu KCS đã chuẩn hay chưa.
6. Lắp trục
Như đã nói ở trên, kích thước trục cho cửa cuốn khe thoáng trong điều kiện thường sẽ bằng chiều rộng phủ bì của bộ cửa. Nếu bộ cửa của nhà bạn cần phải lắp trục dài hơn. Trong một số trường hợp đặc biệt, hãy yêu cầu thợ đo đạc cẩn thận. Và tư vấn kỹ hơn, tránh trường hợp trục thiếu phải bỏ gây lãng phí.

Lắp trục cho cửa cuốn khe thoáng
- Lắp trục đảm bảo song song với mặt đất. Có thể dùng ống ti-ô để đánh thăng bằng.
- Sau khi đánh thăng bằng xong phải hàn chết phần trục di động bên mặt bích phụ.
7. Lắp motor cho cửa
- Kiểm tra lại motor trước khi lắp: Kiểm tra hoạt động của motor có trục trặc gì không. Kiểm tra độ trùng của xích kéo từ 5 – 10 (mm)

- Lắp motor cho cửa cuốn khe thoáng

8. Lắp đặt hệ thống điều khiển cho động cơ:
- Trước khi lắp động cơ cho cửa cuốn khe thoáng, người thợ đã phải kiểm tra hệ thống điện xem đã hoạt động hay chưa và lắp đường điện đảm bảo kỹ thuật thẩm mỹ cho động cơ.
- Khi lắp đặt đầy đủ một bộ điều khiển sẽ có: Hệ thống đảo chiều cho cửa khi gặp vật cản, hộp nhận điều khiển, phím bấm âm tường.
- Sau khi lắp đặt xong kiểm tra lại sự hoạt động của tay điều khiển và hộp nhận, kiểm tra lại động cơ đã hoạt động trơn tru êm ái chưa.
Điều khiển động cơ có 2 loại: mã gạt và mã nhận, mỗi loại mã có cách cài đặt khác nhau.
9. Lắp lá cửa khe thoáng:
- Lá cửa của Masterdoor được đóng gói theo hộp, trong hộp các lá cửa được ghép lại theo từng mảng, mỗi mảng gồm 8 nan cửa rất thuận tiện cho việc lắp cửa.
- Tùy theo vị trí lắp đặt và có cách lắp lá cửa sao cho dễ dàng nhất.
Tư Vấn Chọn Cửa Cuốn Để Lắp Đặt Sử Dụng.
Ngày nay, nhu cầu hiện đại hóa ngày một nâng cao. Trước xu thế này, nhiều người đã lựa chọn lắp đặt cửa cuốn. Và làm hộp kỹ thuật cửa cuốn thành biển quảng cáo để kinh doanh. Nếu chọn cửa cuốn nào có chất lượng thì bạn sẽ được trải nghiệm tiện lợi nhất trong quá trình sử dụng.
Tuy nhiên trong trường hợp ngược lại, hệ quả hết sức khó lường. Chính vì vậy nếu bạn có thời gian hay đọc những dòng bài viết dưới đây. Để có được kinh nghiệm chọn cửa cuốn phù hợp nhất với gia đình bạn.
